ホーム > 小牧市の屋根リフォーム事例|雨漏れ・外壁サイディング・玄関ま…

小牧市の屋根リフォーム事例|雨漏れ・外壁サイディング・玄関まわり・カーポート設置・全面外観リニューアル
【工事のきっかけ】
お家の方が屋根の穴をなんとか塞いでいましたが、補修が追いつかない状態になってしまい、連絡をいただきました。
業者に頼むと費用がかかってしまうという認識を持たれていましたが、何度も提案、打ち合わせにお伺いした事で、そこまでやってくれたのならと工事をご依頼いただきました。
基本情報

- 施工内容:外壁塗装
- 施工期間:約3週間
- 築年数:約30年
- 使用材料:旭トステム セドナ 機能門柱 アクシィ1型 アルシャインⅡ MW型
今回ご紹介するのは、小牧市での屋根修理と外壁リフォームの施工事例です。
最初のお問い合わせは、「玄関の上にあるベランダ屋根からの雨漏れがひどくなってきた」というものでした。
築30年のこちらのお宅では、ベランダに取り付けられている小屋根の一部に穴が空き、ご自身で市販の補修材(ボンドなど)を使って修理されていましたが、補修では対応しきれない状態となり、今回弊社にご連絡をいただきました。
「修理の相談をすると高額請求されるのでは…」という不安
長年ご自身で修理を続けられていた背景として、「業者に頼むと高額になるのでは?」というご不安があったそうです。また、「一度問い合わせたら、もう工事をしなければいけなくなるのでは?」という心理的なハードルもあったとのこと。
実際、同様にお悩みのお客様は多くいらっしゃいます。しかし弊社では、現地調査・状況の診断・最適な施工方法とお見積りの提示までを無料で行っており、「知るだけ」「検討だけ」でも安心してご相談いただけます。
実際には(少なくとも当社では)、しっかりとした事前調査、状態確認から解決策の提案、お客様のライフプランに合う工事の打ち合わせと施工を心がけており、解決策と費用を知るというだけでも喜んで対応させていただいています。
上記の事を踏まえ、現状の調査を行いました。散水チェック、下地を屋根裏からの確認、現状の劣化確認をしました。
現地調査では、散水試験を行い、屋根裏からの下地確認、外壁・ベランダの劣化状態を入念に確認しました。その結果、屋根からの浸水だけでなく、ベランダや外壁からの雨漏れも確認できました。
ただし、全ての箇所からの雨漏れを100%断定するのは難しく、ご相談のうえ、修理の優先順位・予算・耐久性などをもとに、いくつかのプランをご提案する形となりました。
ポイントはどれくらいの予算で工事をするか、現状をどう直すか、どれくらい持たせる修理をするか
数回にわたる打ち合わせの中で、Y様とご家族からは「外観も玄関まわりもきれいにして、気持ちよく住みたい」というご希望があることがわかりました。そこで、単なる補修ではなく、「外観のリニューアルを兼ねた工事」をご提案。
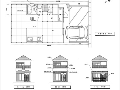
下記のようなリフォーム計画をご提示しました:
立面図(建物の正面から見た図)も作成し、視覚的にご提案内容を共有したところ、「今の家が新築のように生まれ変わるなら」と、大変ご納得いただきました。
解体作業から始まります。
ベランダの下地組みをしていきます。
下地組みが終わったら、防水シートを貼り、外壁材を貼っていきます。
今回は旭トステムの金属サイディングセドナを使用しました。
また、外壁工事と同時に玄関を交換します。
最後に、カーポートを設置し、伸縮門扉と機能門柱を立てて完成です。
「まるで新築のように生まれ変わった家に帰るのが楽しみになった」とのお言葉をいただきました。
実際に施工前後の写真を比べると、住宅の印象はまったく異なり、明るく、安心して住めるお宅へと変貌しました。
また、今後も定期的な点検を実施し、雨漏れや外壁の劣化などがないかを確認してまいります。弊社では工事後のアフターフォローも大切にしており、お客様に末永く安心していただける住まいづくりをお手伝いしています。
小牧市での屋根補修・点検相談は、
【街の屋根やさん尾張北店】まで
お気軽にお問い合わせください!
【2025.7.21編集】
この記事を書いた加盟店
電話 0120-989-742
E-Mail yaneya@138hm.com
株式会社ハウスメンテナンス
〒491-0062
愛知県一宮市西島町1-29-1
愛知県の加盟店一覧
電話 0120-989-742
E-Mail yane-nagoyahigashi@home-kenzai.co.jp
ホーム建材株式会社
〒465-0025
愛知県名古屋市名東区上社4丁目162番地
電話 0120-989-742
E-Mail yane-mikawa@home-kenzai.co.jp
ホーム建材株式会社
〒448-0807
愛知県刈谷市東刈谷町2丁目1−6
電話 0120-989-742
E-Mail machiyane@infield-gr.com
株式会社インフィールド
〒458-0847
愛知県名古屋市緑区浦里1-86 B棟
電話 0120-989-742
E-Mail info@machiyane-fk-toyohashi.com
屋根福瓦工業有限会社
〒441-8154
愛知県豊橋市西高師町字沢向23−2
電話 0120-989-742
E-Mail machiyane-kasugai@takumi-home.biz
株式会社匠ホーム
〒487-0034
愛知県春日井市白山町5丁目18-3

共通の施工事例はこちら
記事がありません
表示する記事はありませんでした。
各種屋根工事メニュー
私たち『街の屋根やさん』は神奈川県を含む関東全域を施工エリアとする、お住まいの屋根の専門店です!
街の屋根やさんでは下記の工事を取り扱っております。工事内容の詳細は各工事ページでご確認下さい。

街の屋根やさんが施工している様々な屋根工事と屋根リフォームの一覧をご紹介します。

お客様の不安を解消できるように、お問い合わせから工事の完成までの流れをご紹介しています。

街の屋根やさんが施工している様々な屋根工事と屋根リフォームの一覧をご紹介します。

お客様から寄せられた屋根に関する疑問を、当店スタッフが親身に回答しています。

弊社で行った施工事例をご紹介しています。詳細な説明と写真でわかりやすくお伝えします。

弊社の会社概要になります。街の屋根やさんとはこんな会社です。